New Timber Frame For Sale
Lantern Timber Frame - For SALE
Please contact us for more details.
lan•tern (lan′t rn) A structure built on top of a roof with open or windowed walls to admit light and air.
This 3020 sq. ft. "BEYOND-THE-ORDINARY" hewn
timber frame, with a Dutch-hipped roof and gable dormers is built and
ready to install on your site.
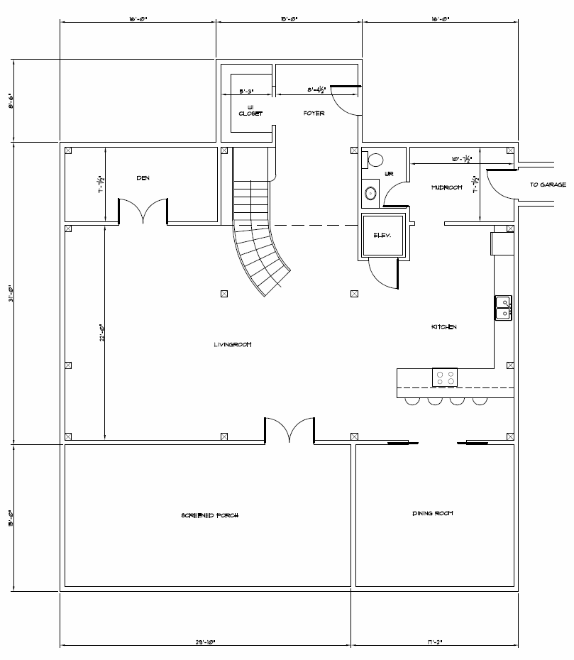
A vaulted grand entrance, with curved staircase, intrigues
one to step in and discover. Magnificent timbers, with high ceilings
and curved beams, highlight the open plan. There are gathering spaces
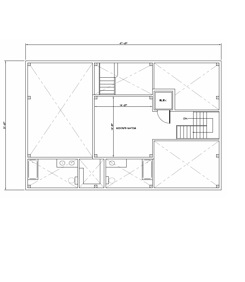
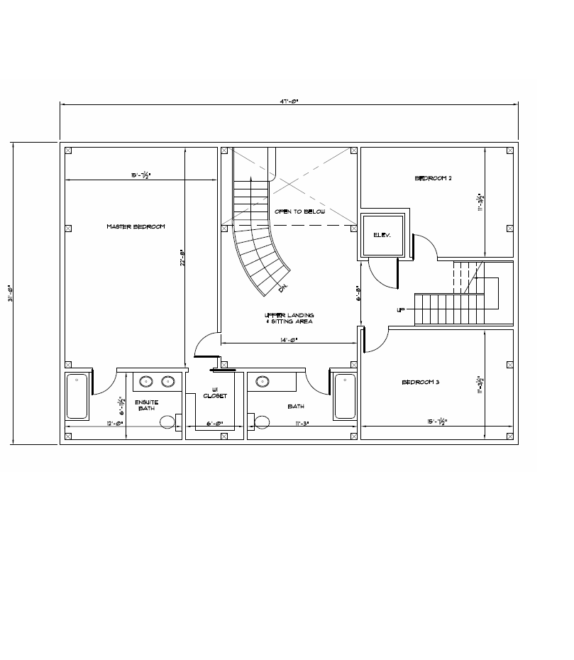
for celebrations, a master bedroom suite, and a breathtaking 14x14 tower
room (elevator accessible). The floor plan is adaptable to meet your
individual needs. The exterior can be finished however you wish. A couple
of options are offered for your consideration.
Specifications:
- 30x46 with a 14 x 14 Lantern-Tower Room
- 3020 Square Feet
- 3 Bedrooms & 3 Bathrooms

Hand-hewn finish
Included:
-
Timber
Frame with Hardwood Pegs
The hewn-surfaced timbers, a mixture of pine/hemlock & spruce,
have a rich dark texture and color. Planed oak timbers highlight the
Lantern-Tower room.
- Installation labour included for the 48 continuous States and Canada. Installation
also available for other locations. (Some conditions apply, see below.)
Price:
Pleaase cotact us (Timber Frames are sold under NAFTA Free
Trade to the USA)
Video requires Flash Player and JavaScript
Click to play video Other Options:
- Timbered entry, porch, deck, sunspace
- Formal dining room addition
- Timbered walkout basement with recreation room, wine cellar, sauna
and home theater, garage
Shipping:
We will arrange the shipping for you; the cost of shipping is NOT included
in the price. Shipping from Nova Scotia to Wisconsin was $4500.00 in
January 2008.
Not included:
- Forklift or crane for unloading frame upon delivery and crane (3-4
days) for installation of frame (estimated 5-7 days to install, depending
on site);
- Shipping from Nova Scotia to site;
- On-site electrical power supply;
- Engineering stamps, building permits and any other legal documents
required by any legal entity.
Please contact us to discuss the possibilities, payment terms, shipping,
scheduling and site preparation. |